Salud, Bienestar, Comercial
Cali
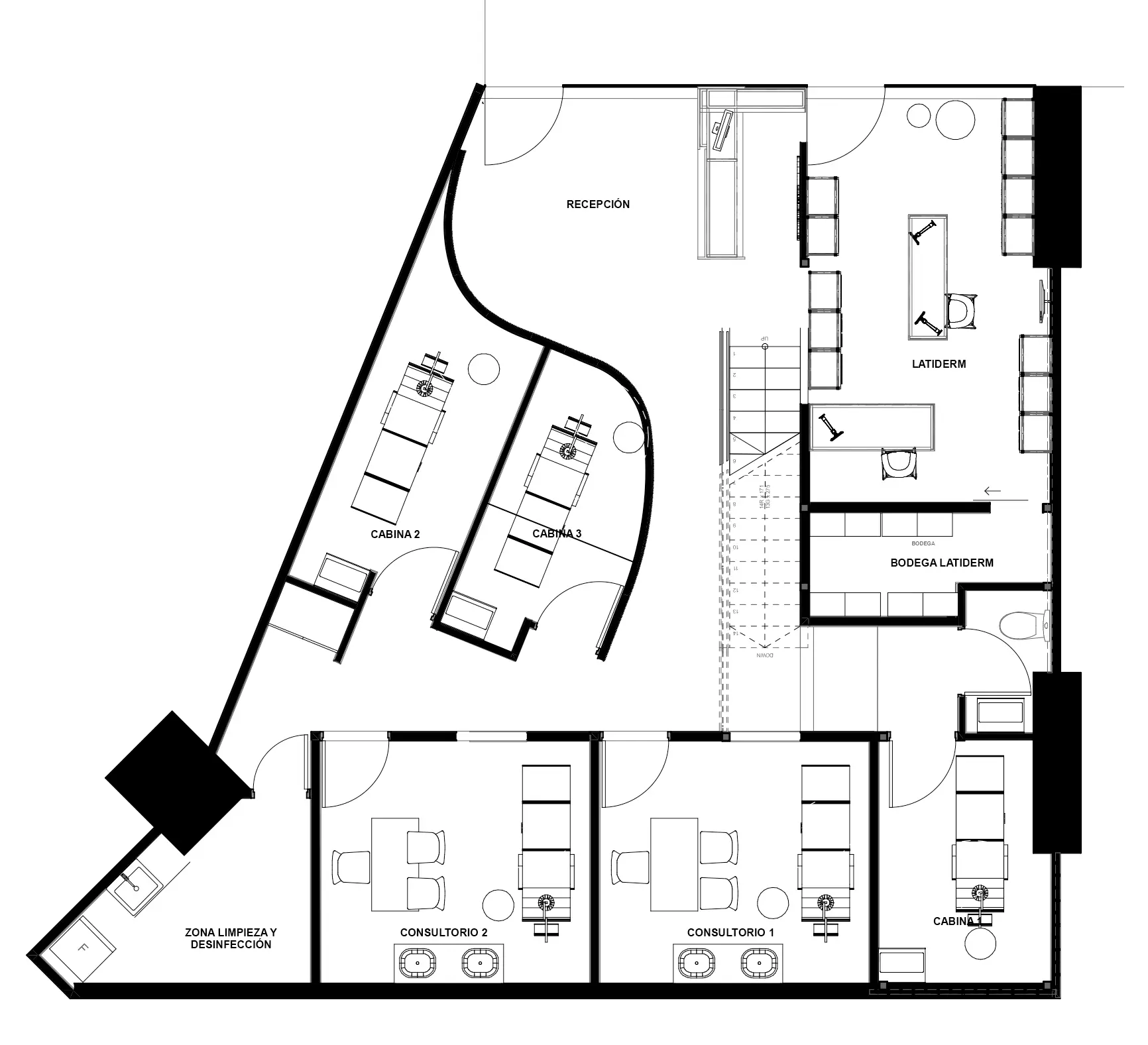
134 M2
Construido
La piel es aquello que cubre tu cuerpo, que limita el afuera y el adentro. Natural, perfecta e imperfecta a la vez. Este, conceptualmente, es el derrotero que orientó la construcción del segundo Self. En Self, la piel es todo. Nuestra propuesta, de la mano del equipo de doctores, fue hacer un espacio de reconocimiento, que reflejase en cada gesto la condición natural propia. Natural y perfecto.
El espacio se centra en un elemento central que organiza las diferentes dependencias, buscando resaltar la materialidad por sí misma, la luz es el único material que eleva la materialidad.
Self es un escenario donde lo natural se conjuga con la armonía. Un sueño que crece con cada tallo.
Equipo: Andrés N. Sánchez, Daniel Páez, Angelica Osorio
















